暗挖隧道过地裂缝施工技术
摘 要 以西安地铁一号线万寿路 ~ 长乐坡区间 F5 暗挖隧道的施工实践为基础,结合西安地铁暗挖法过地裂缝的一些问题,提出了相应的施工对策,以便于以后类似工程施工借鉴。
关键词 暗挖隧道 地裂缝 施工技术
1 概述
1. 1 工程情况
本工程万寿路 ~ 长乐坡区间 F5 暗挖隧道沿长乐路 东 西 走 向,左 线 长 303. 029 m,右 线 长337. 213 m,为左右并行的双线单洞大跨隧道,隧道开挖尺寸为 10 m( 跨度) × 10. 2 m( 高度) ,左右线间距 14. 0 m。隧道覆土厚度约为 16. 05 ~ 19. 5 m,采用 CRD 工法施工。初衬断面设计见图 1。


1. 2 工程地质
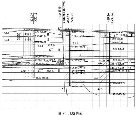
工程地质从上到下依次为 1 - 1 杂填土,1 - 2素填土,3 -1 -1 新黄土,3 -2 -1 古土壤,4 -1 -1粉质黏土,4 - 6 粉细砂,4 - 9 砾砂,4 - 10 圆砾土。过地裂缝带隧道范围主要为 4 -1 -1 粉质黏土,4 -6 粉细砂,4 - 9 砾砂,4 - 10 圆砾土。拱顶有 1 ~2 m厚 4 - 6 粉细砂层( 见图 2) 。从地质剖面图上来看,隧道开挖面以地裂缝为界从粉质黏土、黄土向砂卵石地层的过渡,即从稳定地层向不稳定地层的过渡。
1. 3 水文概况
本区间地下水埋深介于 20. 41 ~24. 79 m,地下水位基本位于隧道拱腰处,根据西安市多年水位观测资料,低水位期为 7 月至 9 月,高水位期为 12 月至翌年 3 月,地下水位年变化幅度为 2 m 左右。
2 地裂缝的形成及对施工的影响
2. 1 地裂缝的形成
地裂缝是地表岩、土体在自然或人为因素作用下,产生开裂,并在地面形成一定长度和宽度的裂缝的一种地质现象。西安地裂缝有垂直位移、水平拉张和水平扭动共 3 个方向的活动,其中以垂直位移最为强烈。
根据西安地铁一号线地裂缝勘察结果,F5 地裂缝在本区间于路南侧八零九库门前处相交,路面上有明显的破裂痕迹,裂缝宽 2 ~ 3 cm,总体走向NE60°,南东盘相对北西盘有明显下沉,表现上盘下降下盘上升的正断层特征。
2. 2 地裂缝对施工的影响
地裂缝变形带的土体裂隙多、工程性质差,隧道过地裂缝时存在很多不确定性风险,其中主要的影响如下:
( 1) 地裂缝为一条狭长的透水通道,隧道通过时可能会出现沿裂缝带的集中渗水现象,造成隧道涌水涌砂坍塌; 或造成隧道局部降水不到位,无法施工。
( 2) 由于地层错位,致使地层从稳定向不稳定过渡,隧道开挖时,拱顶及边墙易出现塌方现象。
( 3) 地裂缝的不均匀沉降会造成管线破坏。
( 4) 地裂缝带长期存在缓慢变形,天然气管道、污水管、给水管等会因地层错动,造成接头处泄漏,引起易燃易爆及有毒气体渗入隧道,造成人员设施损失。
3 过地裂缝施工技术
3. 1 施工流程
施工准备→降水→打超前小导管→超前注浆→分部分台阶开挖隧道土方→挂钢筋网→初喷混凝土→安装钢格栅→焊接纵向连接筋→挂钢筋网→喷射砼→初支背后注浆→ 一直向前循环。
与常规施工流程比较,本处增加了一道初喷工序。下面就与常规施工方法比较有差异的一些工序作一介绍。
3. 2 降水施工
根据降水计算结果,降水采用管井降水,管井采用 500 mm 无砂混凝土滤管,井深 40 m,在地裂缝带井距加密到 6 ~ 8 m,采用大功率水泵抽水,力争将水位降到隧道底部,保证隧道在无水情况下作 业。
通过水位观测井测量,如水位确实难以降到隧道底部,可采取在地面对地裂缝两端用旋喷桩进行隔离,堵住来水通道。
3. 3 超前注浆加固地层
3. 3. 1 小导管打设
超前小导管原设计参数为管长 3 m,每 3 榀一打( 格栅间距为 0. 5 m) ,由于管太长,打设时极易造成塌方。结合实际情况,将小导管参数改为管长1. 5 m,每榀一打,环向间距不变; 同时小导管打设方法采用高压风管吹孔,然后将制作好的小导管直接插入。这样在满足设计要求、达到超前加固地层作用的前提下可以避免扰动围堰,减少塌方量。
3. 3. 2 小导管注浆
超前注浆原设计采用的是 1∶ 1的水泥 - 水玻璃浆液,根据地层情况,拱顶及边墙为粉细砂和砾砂层,施工单位改用水灰比为 0. 8∶ 1的固砂剂进行注浆加固。固砂剂具有流动性能好、硬化速度快( 初凝时间7 ~10 min,终凝时间10 ~13 min) 、早期强度高、操作方便( 按一定比例加水搅拌均匀后,用高压风直接吹入小导管内渗入土体) 、操作时间好调整( 越稀凝固时间越长) 等特点,特别适合对砂砾地层注浆加固,不需要太大注浆压力,固砂剂注入后,能迅速渗入砂砾孔隙,形成一道泥膜,阻止围堰塌方。相对水泥 - 水玻璃浆液,固砂剂具有设备材料简单轻便、操作简单、注浆效果好控制、注浆时不需要封闭掌子面等优点。
3. 4 土方开挖
土方开挖采用分部分台阶法施工,即隧道分 4个导洞施工,每个导洞再分几个台阶开挖土方。施工时根据地质条件调整台阶的高度和宽度,地质条件差时,尽可能多分几个台阶,这样可以减少围堰的暴露面积和时间,避免大的塌方。
隧道施工时加强超前地质勘探,提前掌握前方的地质及水位情况; 如前方地质和水文条件难以保证施工安全时,可采取长管棚超前注浆加固地层或从地表对地裂缝带进行整体注浆加固。
3. 5 挂网初喷混凝土
土方开挖到位后,迅速沿围堰面挂上一层钢筋网片,及时喷射一层 4 ~5 cm 厚的混凝土,保证围堰稳定,避免后续施工对围堰的扰动。
3. 6 初支背后注浆
对塌方处及时采取灌喷混凝土和多次反复注浆进行填充,保证已施工的围堰稳定,避免引起连锁反应,造成前方围堰塌方。
4 辅助施工措施
( 1) 加强地裂缝带的监控量测,用数据指导施工。
( 2) 仰拱预留注浆孔,当基底有沉降时及时注浆加固。
( 3) 加强防水防渗措施,及时将隧道积水排出井外,避免软化地基,造成不均匀沉降。
( 4) 加强通风。
( 5) 加密气体检测频率。
5 实际施工效果
通过采用以上的这些施工措施,F5 地裂缝带已安全顺利通过。在过地裂缝带时,加密的降水井基本可以将水位降到隧道底部; 通过打超前探孔可以了解前方掌子面的地质水文情况,为隧道施工决策提供了依据; 多台阶、注固砂剂、初支背后回填密实可以有效地减少塌方量,在不需要加大成本的基础上减少了施工风险,保障了施工质量; 通过加密监测频率,及时对仰拱进行回填注浆,及时将隧道积水排出井外,有效地减少了地裂缝带地面变形量;通过加强通风,隧道的空气质量正常。
6 结束语
地裂缝在西安地铁施工中是很常见的,只有充分地认识和了解,才能在施工中做到有的放矢,从设计上筹划上尽可能地规避风险,在实际施工中也有充足的风险应对思想准备,力争隧道安全顺利通过地裂缝带。