紧邻地铁深基坑工程的前期策划及施工
【摘 要】上海南京西路 1788 号工程基坑紧邻地铁区间隧道,因其地处闹市、施工条件复杂,对变形控制提出了很高的要求。由此,通过对施工方案进行周密地策划,制定科学合理的技术路线,并提出优化建议指导施工,最终顺利地完成了施工任务,赢得了相关各方的认可和业主的信任。
【关键词】前期策划 紧邻地铁 深基坑 优化措施 变形控制
1 工程概况
上海南京西路 1788 号地铁项目位于繁华的静安寺商圈,北邻愚园支路、南邻南京西路,东侧与西侧紧邻多幢商业、办公建筑。该项目建设用地面积约 12 000 m2,拟建 1 幢地下 3 层、地上 29 层的现代化高级办公楼,总建筑面积逾110 000 m2。
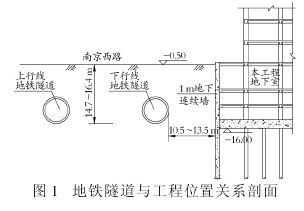
本工程地下室基坑占地面积约 10 000 m2,普遍开挖深度 15.15 m。基坑南侧紧邻轨交 2#线区间隧道。该隧道位于南京西路下,埋深处于开挖深度范围内,其中下行线隧道与本工程净距 10.4 m~13.5 m,且与基坑平行长度近百米。具体位置关系如图 1 所示。

在深入剖析工程特点基础上,经反复论证,并征询了各方面专家的意见后,我们作了一次详尽、周密的前期策划,在大局上实现施工组织的均衡合理、统筹安排,在细节上体现方案的针对性、科学性和可行性。
2 基坑分区的优化
根据轨交运营公司的要求,本工程基坑应采用分区、分期施工,即通常所说的大小基坑施工法———在基坑中间设置厚为 1 m的地下连续墙作为临时分隔墙,保留地铁侧区域的一部分基坑,待大部分区域地下室结构出零后再继续施工。
采取该方法施工面积较大的Ⅰ区大基坑时,可拉远基坑与地铁隧道之间的距离,同时与地铁隧道间有两堵地下连续墙及加固土体作为屏蔽,可将施工对其影响减小到最低程度。而在开挖施工狭长形的邻轨交 2 号线Ⅱ区小基坑时,形成了类似地铁车站的狭长形基坑施工,这样便缩短了迎地铁侧的基坑开挖暴露范围、减小了同时开挖的基坑面积,从而降低基坑整体开挖实施过程中大范围卸土对轨交 2 号线的影响。
在初步基坑围护设计方案中,我们将分隔墙离地铁侧永久地下连续墙 15 m左右处进行平行设置,由于分隔墙侵入了主楼核心筒结构范围,并切掉了核心筒一个角,造成核心筒不能完整地一次性施工,从而对结构整体性有巨大影响。因此,我们与围护设计方和轨交运营公司多次沟通后,对分隔地墙的设置进行了优化,即:东侧将分隔墙南移至核心筒结构外侧,西侧的分隔墙平行于主楼的一根轴线设置。这样既能满足轨交运营公司的要求,又能确保施工的顺利进行(图 2)。

3 支撑及栈桥优化
初步围护设计中,Ⅰ区大基坑竖向设置了 3 道钢筋混凝土支撑,布置形式为十字对撑,第一道支撑结合布置施工栈桥;Ⅱ区小基坑竖向设置了 4 道 φ609 mm的钢管支撑。
3.1 Ⅰ区大基坑栈桥布置优化
在Ⅰ区大基坑中部,原设计设置了十字形的栈桥,但由于和现场的施工大门无法衔接,给施工造成相当大的不便。因此,我们将栈桥布置进行优化,使栈桥出口和 3 扇大门分别对应,并使栈桥形成环通,以增加场内交通的灵活性(图3、图 4)。

3.2 Ⅱ区小基坑支撑优化
我们将Ⅱ区小基坑的第一道 φ609 mm钢管支撑替换为钢筋混凝土支撑,这样不仅能使基坑上口得到有效地锁定,增加基坑整体稳定性,而且还方便设置施工栈桥。具体优化措施为:
我们将第一道支撑的标高适当抬高 (原中心标高为- 2.00 m)后进行栈桥布置。栈桥于基坑南半侧统长设置,以沟通南京西路的 2 扇施工大门,并以此作为施工通道兼作挖土、混凝土浇筑等施工平台。栈桥上预留钢支撑吊装孔,平时用盖板覆盖(图 5)。

4 针对地铁隧道的保护措施
4.1 地铁隧道变形控制要求严格
众所周知,深基坑明挖施工往往伴随着极强的环境效应,会对邻近的轨交线路产生影响。而运营中的地铁隧道,其变形控制要求十分严格,一旦由于变形过大而引发事故,所造成的经济损失和社会影响是不可估量的。为此,我们在策划中着重体现对地铁隧道变形控制的有关措施,特别是对施工环节的一些细节进行优化,从而在技术上来保证地铁的安全(表 1)。

4.2 挖土施工措施
由于在软土地基的深基坑开挖过程中,会不可避免地发生围护体变形和坑底隆起的现象,从而使周边土体产生变形流动,导致紧邻基坑的地铁隧道的变形。因此,我们除了采用坑内土体加固,分层、分块开挖,基坑疏干降水,坑底垫层及时浇筑等常规措施外,必须还要采取另外行之有效的手段来控制基坑变形。
4.2.1 地铁侧盆边土
基坑开挖应遵循先撑后挖的原则,要分层、分块、限时进行,并利用时空效应原理,尽量减少基坑无支撑的暴露时间,来严格控制基坑的变形。
Ⅰ区基坑南侧地墙 (临时分隔墙) 距离地铁隧道约20 m~ 28 m,我们采用盆式开挖工艺,竖向分 3 道支撑、4 层土方开挖依次组织施工流程,并以基坑内地铁侧的被动土开挖为控制重点。为保证基坑开挖对地铁隧道的影响控制在最小范围内,要确定每层土方开挖时保留地铁侧围护内侧的土堤为最后开挖区域。其留土宽度一般为每层开挖深度的 2~4倍,并随着基坑开挖深度的增加,留土宽度也应相应增加。施工阶段,应视实际情况采取如护坡、局部打设轻型井点降水等措施,以确保留土边坡的稳定性(图 6)。

4.2.2 地铁侧挖土、支撑时限的控制
地铁侧的留土土堤应实行分段、间隔开挖的方法,以减少围护内侧无支撑的暴露时间。每段开挖后,应及时浇筑南北方向的主撑,要求开挖、支撑形成时间控制在 24 h 内。必要时,可考虑在支撑混凝土内掺早强剂,以加快支撑强度的形成。
该区域采用了三轴搅拌桩的满堂地基加固处理措施后,土质情况良好、抗滑移能力强,因此,能满足开挖时分段间放坡情况比较极限的要求(图 7)。

4.2.3 Ⅱ区挖土施工
Ⅱ区土方开挖阶段须控制基坑无撑的暴露时间,以保证挖土、支撑安装的时限。其施工方法应参照地铁车站施工的成熟工艺,采用分段开挖、支撑的方式。具体做法为:将挖土分段控制在 6 m之内;每挖完一段土,立即安装 φ609 mm的钢管支撑,并确保每段挖土、支撑形成的作业在 8 h~24 h内完成;通过监测数据,采取已施加预应力的方式,适时地对支撑轴力损失进行补偿,以控制基坑变形。
4.3 支撑拆除与结构施工
支撑拆除程序必须严格按照要求的流程进行,即支撑下方相应的楼层结构施工完成并达到强度要求后(包括分隔地下连续墙处的临时支撑加设完成),方可实施该道支撑拆除施工。要尽量将南北方向的主撑保留到最后拆除,这样可在一定程度上有利于控制地铁侧基坑变形的发展。
支撑拆除时,应采用对环境影响最小的人工凿除为主,在条件允许的前提下,也可尝试切割拆除。
由于Ⅰ区、Ⅱ区之间有临时分隔地下连续墙的存在,使地下室结构从中断开,因此须设置临时支撑,以保证结构受力体系的完整性。本工程临时支撑与围檩采用 H型钢,一端撑于分隔地墙上,一端和结构主梁相连(图 8)。

具体施工时,应采用逐层拆除、逐层补缺的步骤,同时须待上层补缺的结构达到设计强度的 80%后,方可拆除下层的临时型钢换撑,以进行结构补缺施工。
5 施工效果
正式施工时,我们以策划内容为指导,依照现场实际情况,对部分环节进行了深化和优化,使方案更加完善。为更加有效地控制基坑变形,我们在Ⅱ区引入了钢支撑轴力自动补偿和实时监控系统,实现了全天候钢支撑轴力的自动补偿,有效地控制了基坑变形,从而进一步保证了地铁的安全及深基坑工程顺利实施,取得了理想的效果。
总体来讲,实际施工基本上遵循了前期策划中提出的各项关键措施,使工程顺利完成。这也证明当初的策划方案是成功的、具有可操作性的。实际监测表明:控制地铁隧道变形最重要的指标———地铁隧道的累计沉降变形,在Ⅰ区和Ⅱ区底板完成后,分别为 7.11 mm和 4.76 mm,均在控制要求范围内。
本工程作为商业街边超深基坑,紧邻地铁环境复杂、条件苛刻,对此,我们通过前期策划制定的总体技术路线指导施工,并在实施过程中根据实际情况不断完善和创新,最后顺利地完成了施工任务,为类似大型复杂工程的策划管理积累了经验。