隧道预留超近距离地铁盾构穿越条件研究
摘 要:结合上海市迎宾三路隧道需预留超近距离地铁盾构穿越工程实例,对该穿越节点基坑支护方案进行比选,采用了超短地下连续墙与长 SMW 工法桩相结合的基坑支护方案,并在设计中采取一系列综合措施,既预留了盾构顺利下穿条件,同时确保了隧道基坑施工及后期安全,对今后类似工程具有一定参考价值。
关键词:预留盾构超近距离穿越;超短地下连续墙;SMW 工法桩;迎宾三路隧道;上海市
1 工程概述
上海市迎宾三路隧道是上海虹桥枢纽对外辅助通道,枢纽及其以东周边地区和中心城之间的客运专用通道,隧道段布置双向 4 车道机动车专用。隧道西起虹桥综合交通枢纽的规划迎宾三路,穿越虹桥机场向东延伸,与东侧的现有迎宾三路相接。
该隧道工程西侧矩形箱涵位于七莘路以西,规划迎宾三路南侧,为地下两层箱型结构,采用明挖顺做法施工。交汇段地铁 17 号线迎宾三路站 -沪青平站区间为双线单圆盾构隧道,外径 6.2 m。地铁区间以盾构形式下穿迎宾三路隧道矩形箱涵段,盾构距箱涵底板最近处仅 2.5 m,如此超近距离预留盾构下穿在类似工程建设中较为罕见。
交叉段平面布置见图 1 所示。

2 工程地质条件
拟建场地为古河道沉积区,自上而下可分为八个大层,11 亚层及 1 个夹层。其中①层为近代人工堆填,②~⑤层为第四纪全新世 Q4 沉积层,⑥~⑧层为第四纪上更新世 Q3 沉积层。
迎宾三路隧道底板落于④t 层灰色砂质粉土,地铁 17 号线区间穿越土层为⑤层灰色粉质粘土。
地下水由浅部土层中的潜水及赋存于④t 层的微承压水、赋存于⑤4-2、⑦2层及⑧2层中的承压水组成。根据地质报告,设计时地下水潜水水位按上海市年平均水位埋深 0.5 m 采用。④t层微承压水水位埋深 4.10~5.83 m,⑦2层承压水水位埋深5.93~8.21 m,局部区域⑤4-2、⑦2及⑦2层连通。
土层参数见表 1 所列。

3 预留超近距离盾构穿越节点研究
根据线路总体布置,规划轨道交通 17 号线在迎宾三路隧道 XK0+416.400~XK0+392.700 之间,采用两根单圆盾构穿越,且两者净距较小,最近处仅 2.5 m。该范围内隧道的基坑深 16~17.2 m,属软土地区深基坑,一般采取地下连续墙围护。隧道施工须考虑后期实施规划轨道交通 17 号线盾构顺利穿越条件,同时确保该隧道基坑开挖及后期结构的安全。
3.1 基坑支护方案确定
3.1.1 方案一:该范围隧道主线仍采用地下连续
墙施工隧道主线采用 1 m 厚地下连续墙围护,盾构施工须穿越与之相交的地连墙,该段地连墙在迎宾三路隧道底板以下盾构穿越范围采用 C15 混凝土及玻璃纤维筋。后期盾构机推进时可直接切割纤维筋混凝土。该方案为以往类似工程较常规的预留方式,如轨道交通 4 号线宜山路站基坑和复兴东路隧道浦西暗埋段基坑等。
3.1.2 方案二:该范围隧道主线围护采用地下连续墙和 SMW 工法相结合
采用 1 m 厚超短地下连续墙作为基坑的第一道围护,17 号线影响范围内的地墙插入深度至迎宾三路隧道底板下 1.5 m,确保距 17 号线盾构净距不小于 1.0 m。在 17 号线影响范围内的地墙外设置另一道 Φ1000SMW 工法围护,并在该节段主体结构施工完成后,拔除工法桩中的内插型钢。该预留方案类似工程实例较少,仅外滩通道与地铁12 号线预留中,采用类似围护结构形式,但其穿越竖向距离约 5~6 m,坑底以下墙体长度有 4~5 m,插入比约 0.25,且在坑底以下设置了横向短地下墙。与外滩通道相比,该工程预留盾构穿越竖向距离更近,仅约 2.5 m,坑底短墙插入比只有0.1,且取消了坑底横向短地下墙,支撑条件更为苛刻,基坑开挖设计及实施难度更大。
3.1.3 方案比选
方案一优点在于可加快该隧道施工,且施工风险小,但将风险留给后期地铁盾构施工。而且针对该工程超近距离穿越的特殊工况,其主要不利因素还有:(1) 盾构机虽然可以直接切割纤维筋和低强度混凝土,但如此超近距离的穿越,切削后形成的加筋混凝土残留碎块容易挤压隧道底板,于底板安全稳定不利。(2) 盾构穿越加筋混凝土障碍推进,其土体损失及变形较难控制。(3)后期盾构穿越时,一旦出现盾构机切削故障,将对已运营隧道带来较大风险。
方案二的优点:有效地避免了盾构机直接切削地下连续墙,降低了 17 号线后期建设的风险和施工难度,同时也减少了 17 号线施工的工期和造价;盾构的在无障碍的条件下穿越,对隧道的不利影响小;综合风险较小。不足之处在于该项施工需采取必要技术措施确保基坑施工安全。
经过对穿越段结构方案深入比较及分析研究,充分考虑地铁 17 号线和该工程的综合风险,确定采用方案二。
3.2 基坑支护设计
3.2.1 围护结构形式
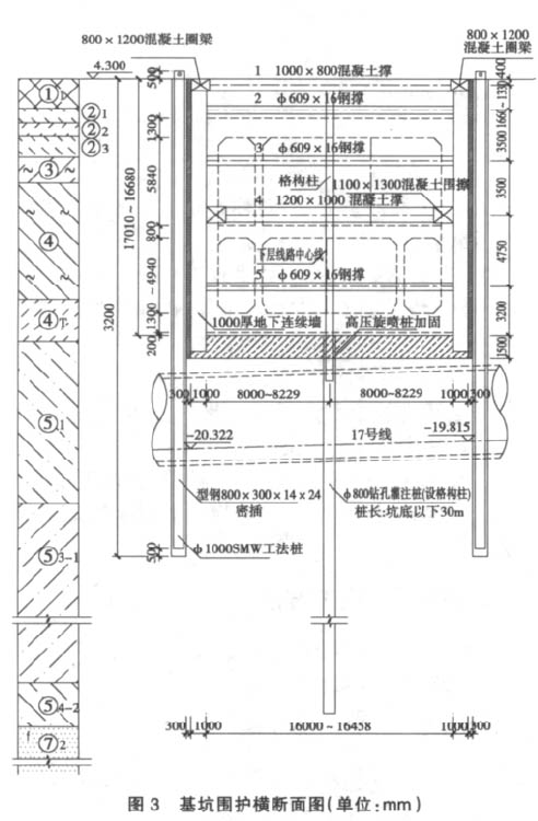
基 坑 采 用 1 m 厚 超 短 地 下 连 续 墙+Φ1000SMW 工法桩组合围护,SMW 工法围护与地墙之间预留 30 cm 的施工间隙,并对该间隙采用高压旋喷桩加固。
为控制地下连续墙墙趾与盾构净距≥1 m,坑底以下墙体长度最短仅 1.1m,插入比仅约 0.1 左右。Φ1000SMW 工法墙趾土层为⑤3-1层粉质粘土夹粉砂,插入比为 0.88。
3.2.2 格构柱设置及支撑布置
基坑支撑竖向共设四道支撑,为增加基坑围护整体稳定性,首道及第三道支撑均采用混凝土支撑。考虑格构柱桩基要避让 17 号线盾构区间,并预留相应的净距,混凝土支撑水平间距均约 14 m,对该区段混凝土支撑设置琵琶撑,琵琶撑水平间距约7 m。第二、第四道支撑为直径 609 mm,壁厚 16 mm钢管,水平间距约 3.5 m。
3.2.3 坑底加固
为保证今后地铁盾构区间的顺利穿越并保证该隧道结构的安全,在基坑坑底采用 1.5 m 厚的满堂旋喷加固,加固体与规划轨道交通 17 号线区间正线净距不小于 1.0 m。
基坑支撑平面布置见图 2 所示,基坑围护横断面见图 3 所示。


3.2.4 分析计算
根据上海市工程建设规范《基坑工程技术规范》(DG/TJ08-61-2010),综合考虑周边环境条件,确定基坑保护等级为二级,基坑围护最大水平位移≤0.3%H(H 为基坑开挖深度)。基坑须达到的稳定要求及其设计计算结果见表 2 所列。

经过对超短地墙及 SMW 工法桩复合支护体系分析及计算,综合考虑周边环境条件,超短地墙与 SMW 工法桩相结合满足基坑稳定性及变形要求,设计方案安全可行。
3.3 相关措施
3.3.1 设置变形缝
隧道结构变形缝设置时充分考虑了地铁 17号线穿越的因素,尽可能使盾构穿越段位于同一结构段内,以利于隧道结构适应后期盾构机穿越施工时纵向不均匀沉降,控制影响范围。
3.3.2 隧道底板预留注浆孔措施
考虑17 号线盾构推进对已建隧道的影响,在盾构施工影响范围内,迎宾三路隧道结构底板上预留注浆孔,为后续措施的实施预留条件。后期 17号线盾构下穿推进时,对迎宾三路隧道加强监测,一旦隧道底板结构变形增大,可以及时打开底板上的注浆孔,进行注浆补强,确保隧道结构安全。
4 结语
迎宾三路隧道土建结构已于 2011 年 3 月基本施工完成。施工实践进一步证明设计方案安全可行,对今后类似工程具有一定参考价值。
参考文献
[1]DGJ08-11-2010, 上海地基基础设计规范[S].
[2]DGJ08-61-2010,上海基坑工程技术规范[S].
[3]陈鸿,冯云,季应伟.预留盾构穿越超短地下墙工法桩的围护结构[J].中国市政工程,2010,(增刊)