地铁叠线区间联络通道设置方案研究
摘 要:文章以地铁叠线区间联络通道设计为例,探讨了联络通道设置的
2 个方案并重点介绍了区间疏散的原则及疏散方式,对竖向联络通道与水平联络通道进行了同等深度的全方位的比较研究。
关键词:地铁;联络通道;叠线区间;同台换乘
地铁线路为改善换乘功能,在两条不同线路间设置同台换乘车站,通过车站实现两个方向客流的完全同台换乘,使两条线路的左右线在部分区间各自上下重叠,形成叠线区间。根据 GB 50157—2003《地铁设计规范》,两条单线区间隧道间,当隧道连贯长度>600 m时,应设置联络通道且联络通道至车站端头距离不应超过 600 m。由于叠线区间同一条线路左右线上下重叠,是在同一条线路的左右线间设置竖向联络通道,还是在两条线路间设置水平联络通道,目前规范并无明确规定且这两种做法各具优缺点。本文就叠线区间联络通道设计中遇到的问题进行了探讨。
1叠线区间线路
某地铁 A、B 号线为独立的地铁线路,通过两线的交叉实现环线功能,两线分别在北段的 X 站以及南段的 Y 站—Z 站交叉。Y 站和 Z 站均为地下 3 层岛式站台车站且为两条线的同台换乘站(A 号线在南侧,B 号线在北侧)。
Y 站—Z 站区间两条线的左、右线各自上下重叠,通过两座车站实现两个客流方向的完全同台换乘。见图 1。

2区间疏散方式
地铁线路区间隧道位于行车方向左侧设置纵向疏散平台,以列车尾部火灾为例进行分析。
2.1 疏散路径
在紧急情况下,平台侧的列车门打开,乘客从侧门离开火灾列车下到疏散平台,再由疏散平台经联络通道疏散至对侧隧道或临近车站。见图 2。

2.2疏散组织
从图 2 可见,区间紧急疏散影响的区域包括了发生事故的隧道、对侧隧道、两条隧道之间的联络通道以及隧道两端的车站。
3叠线区间联络通道方案
3.1 联络通道设置方式
GB 50157—2003 第 19.1.22 条,两条单线区间隧道之间,当隧道连贯长度>600 m 时,应设联络通道并在通道两端设双向开启的甲级防火门。Y 站—Z 站区间隧道长度分别为 B 号线 800.5 m,A 号线 815.9 m,区间中部需设置一处联络通道且联络通道至车站端头距离不超过 600 m,同时联络通道应尽量与区间废水泵房结合。
3.2竖向联络通道方案
1)B 号线联络通道方案设计
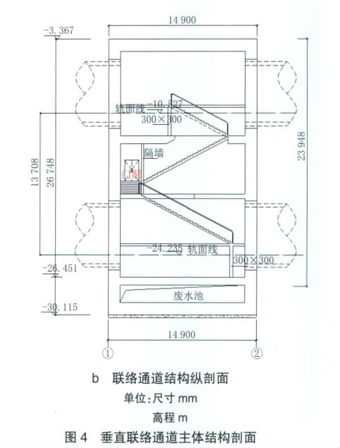
B 号线在 Y 站—Z 站区间线路为上下重叠关系(右线在上,左线在下),结合区间最低点位置设置联络通道和泵房,上下隧道轨面间高差为 13.7 m,左右线的联络通道需通过侧边 1.2 m 宽步行楼梯连接。结合线路埋深及工程地质情况,区间重叠线联络通道方案采用明挖工法,先施工联络通道主体结构并覆土后盾构机再通过,见图 3 和图 4。


(1)联络通道建筑布置
联络通道采用左右线内部上下连通方式,为地下 3层,长 14.9 m,宽 11.65 m,高 24.548 m,-3 层为左线隧道,-2 层作为连接左右侧疏散平台的转换层,同时为设置防火门的位置,-1 层为右线隧道,顶板覆土厚度约为5.7 m。
(2)联络通道结构方案
联络通道为地下 3 层矩形框架结构,明挖基坑为14.9 m×11.65 m,深 30.207 m,泵房处基坑深 32.7 m,围护结构为 1.2 m 厚地下连续墙,连续墙底穿透第二承压含水层进入其下不透水层,墙深约 62 m,采用内支撑方案,共设置 7 道支撑,第 1 道支撑为钢筋混凝土支撑,第 2~7 道支撑及换撑均为Ф800 mm,厚 16 mm 的钢管支撑。盾构进出洞两侧端头土体采用高压旋喷桩进行加固。
2)A 号线联络通道方案设计
A 号线在该段区间线路重叠形式出 Y 站后即上下拉开,同时平面线间距拉开,左右线在区间中部交叉换位,随后线路平面和纵断面又逐渐靠拢以上下重叠形式进入 B 站。
本区间 A 号线左、右线线路最低点位置不重合,因此左右线需分开设置废水泵房,而在废水泵房设置位置,左、右线上下高差较大,约为 9.3 m 和 9.4 m 且平面线间距为 13 m 和 12 m,如将联络通道与废水泵房合建,则需要采用明挖法,工程规模较大,不经济。
该区间联络通道推荐采用与废水泵房分开建方案,联络通道设置在左右线交叉点轨面标高相同位置,采用暗挖法,该通道与常规区间段联络通道设计基本相同(为水平联络通道),联络通道和区间废水泵房采用水平冻结法对地层进行预加固,矿山法施工。
3.3水平联络通道方案
B 号线上下重叠轨面高差较大达 13.7 m,左、右线上下联络通道连接需通过楼梯进行联通,过高的楼梯在紧急疏散时需要消耗大量的体力,特别对于体力较弱者,为解决该缺点,可采用 A、B 号线相连的水平向联络通道方案,即 B 号线左线与 A 号线右线相连的 1#联络通道(该联络通道兼废水泵房),B 号线右线与 A 号线左线相连的 2#联络通道比较方案,同时在 A 号线左线最低点设独立废水泵房以解决区间排水问题。
在 Z 站和 Y 站,都是 A 号线位于车站站台南侧,B号线位于车站站台北侧,Z 站—Y 站区间两条线间设水平联络通道,联络通道洞门开口均靠近车站站台一侧,为满足疏散平台可直接与联络通道相连通,该段区间隧道的疏散平台设置位置将与其他区间段设置不同,存在区间隧道疏散平台换边现象。同时该两右线区间隧道综合管线断面布置也需要进行左右侧镜像调换,可利用区间两端车站端头盾构井加深段布置管线穿轨换位。
1#联络通道处两隧道中心线间距为 13 m,轨面高差为 1.03 m,在通道中部设置步行梯进行过渡,2#联络通道处两隧道中心线间距为 26 m,轨面高差为 2.10 m,在通道中部设置步行梯进行过渡,联络通道两端均设置双向开启的甲级防火门,1#和 2#联络通道在平面上相距约 50 m。见图 5- 图 7。


区间水平联络通道采用暗挖法施工,该通道与常规区间段联络通道设计基本相同,联络通道和区间废水泵房采用冻结法对地层进行预加固,矿山法施工。
3.4方案比较
Y 站—Z 站区间由于存在两条线共 4 条平行隧道,联络通道的设置形式有两种选择,其中竖向设置的联络通道连通区域在同一条线路之内;水平设置的联络通道连通区域在不同线路之间。
从疏散组织来看,无论联络通道的如何设置,相应的机电系统运行、运营组织的要求基本一致;但从疏散路径来看,当联络通道竖向设置时,紧急疏散模式影响的范围在同一条线路之间;当联络通道水平设置时,紧急疏散模式影响的范围就扩大到两条线路。
针对以上竖向联络通道和水平联络通道方案存在的优缺点进行分析比较。
3.4.1 竖向联络通道方案
1)优点
(1)联络通道设置在本条线内,左右线相连,区间综合管线布置等设计与标准水平联络通道区间方案相同。
(2)采用明挖法,工法成熟,施工过程对相邻隧道影响小。
(3)-2 层空间可作为人员疏散时的休息过渡平台。
(4)联络通道建成后对地面景观环境无影响。
2)缺点
(1)采用明挖法施工,施工期间需临时迁改部分地下管线,对地面交通存在一点的影响。
(2)上下隧道轨面高差达 13.7 m,人员从下方隧道向上方隧道疏散时需要耗用大量体力。
(3)当下方隧道发生火灾时,人员向上疏散与烟雾扩散方向相同,对疏散不利。
(4)当上方隧道发生火灾时,作为地下工程,人员从上方隧道向更深的下方隧道疏散,对疏散人员产生一定的心理影响。
(5)两端为连接区间盾构隧道,共存在 4 处进出洞过程,施工风险相对较大。
(6)工程规模较大,投资造价较高。
3.4.2水平联络通道方案
1)优点
(1)联络通道水平向设置,两隧道间高差小,有利于人员的紧急疏散。
(2)采用暗挖法,施工期间对地面交通无影响。
(3)对区间盾构施工无影响。
(4)工程投资造价较低。
2)缺点
(1)区间隧道疏散平台设置位置由行车方向的左侧换到右侧,同时区间综合管线位置也需左右侧对换,与其他区间设计方式不同。
(2)突破了 GB 50157—2003《地铁设计规范》第 19.1.2 条规定:同一条线路按同一时间内发生一次火灾考虑。在本区间发生火灾时,A、B 号线两条线按同一时间发生一次火灾考虑。
(3)区间隧道火灾状态下的通风、供电、行车调度、信号、通信等联动方式由一条线路增加为 A、B 号线两条线路,需进行特殊设计或采取附加技术措施。
(4)联络通道距离上方或下方隧道较近,采用冻结法施工的冻融过程对相邻隧道变形存在一定的影响,施工风险较大。
4结论与建议
综合以上分析,通过竖向联络通道与水平联络通道的同等深度比较研究,采用 2 种联络通道方式技术上均是可行的。但就工程的具体情况而言,两方案各有优劣:就工程造价及乘客逃生思维习惯而言,水平联络通道优于竖向联络通道;但从规范的符合性、工程风险及运营管理等角度分析,竖向联络通道优于水平联络通道。从工程案例角度讲,竖向联络通道已有先例(台北),而两条线之间的水平联络通道尚无先例。
经综合方案比选,Z 站—Y 站区间推荐采用竖向联络通道方案。