满堂支架体系在地铁明挖车站中的应用
摘 要:介绍了支撑架材料与支撑架搭设距离的选择,论述了支撑架受力检算、施工工艺、质量保证体系与安全保证措施。
事实证明满堂支架支撑体系,在较为复杂的明挖地铁车站施工中,具有灵活性及可靠性。
关键词:地铁车站;明挖法;满堂支架;施工工艺
目前,国内正处在地铁建设高峰期,车站多以明挖法施工。 明挖车站主体结构施工较为常见的支撑体系便是满堂支架。 满堂支架支撑体系在工程的顺利使用,充分证明了该种支撑体系具有较强的灵活性、可靠性。
1 工程概况
某地铁工程车站为地下 2 层(局部 3 层)明挖岛式车站,有效站台宽 14 m,车站总长 172.3 m。车站主体结构剖面如图 1 所示。

结构纵向由北向南分 6 段流水施工;竖向按底板→地下三层侧墙及中柱→地下二层板→地下二层侧墙及中柱→地下一层板→地下一层侧墙及中柱→顶板的顺序组织施工。 模板支撑架视结构施工需要搭设。
满堂支架用于车站结构中板及顶板的模板支撑,车站顶板厚 800mm,顶板下净高 6.05m,净宽 35.75m;地下一层中板厚 400mm,最大净高 6.25m,最大净宽 35.75m;地下二层中板厚 700 mm,净高 7.35 m,净宽 35.75 m。
支架杆件以龙门吊、汽车吊运输为主,人工运输为辅。 支撑架采用人工分层搭设成型。
结构中板及顶板混凝土使用汽车混凝土泵采用水平推移法由远及近进行浇筑,插入式振捣器捣固。
2 支撑架施工方案
2. 1 支撑架材料的选择
模板支撑架采用碗扣式钢管支架搭设,局部梁底立杆采用扣件式钢管搭设。 钢管规格为 Ф48×3.5 mm,选用 LG-300、LG-240、LG-180 立杆,HG-60、HG-60横杆,杆件采用碗扣连接;加强支撑采用 6 m(或 3 m)长钢管,采用扣件连接;支撑架底设 KTZ-45 可调底座,顶部设 KTC-45 可调托撑。
模板支架构配件外观质量及技术资料要求如表 1所示。

2. 2 支撑架搭设距离的选择
1)顶板及中板支撑架支撑架纵距 la=0.9 m,横距 lb=0.6 m,步距 h=1.2 m,斜托处采用扣件式支架支顶,扫地杆距地面高度 30cm。支撑架从底到顶连续设置竖向剪刀撑,中间纵、横向由底到顶连续设置竖向剪刀撑,间距 4.5 m,剪刀撑与地面夹角 45 °~60 °,斜杆每步与立杆扣接,扣接点距碗扣节点的距离不应大于 150 mm。 支架顶部、中间和底部设置 3 道水平剪刀撑。
2)梁支撑架
支撑架纵距取 la= 0.9 m(东西向横梁取 0.6 m),横距 lb= 0.6 m,步距 h = 0.6 m,斜托处采用扣件式支架支顶,采用Ф14 对拉螺栓固定梁两侧模板,扫地杆距地面高度 30 cm。 支撑架从底到顶连续设置竖向剪刀撑,剪刀撑设置同板。
以结构标准断面为例,模板支撑架搭设横断面如图 2 所示。

3)自由端长度
自由端采用 35 cm 长立杆,顶托采用 KTC-45 可调托撑,丝扣最大外露长度 15 cm。
4)立杆竖向组合尺寸选择
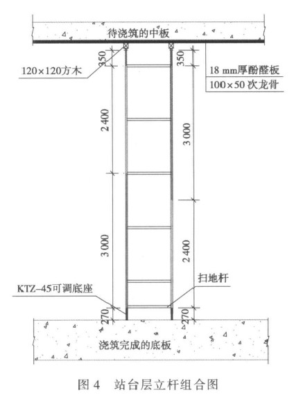
以车站结构标准断面为例,结构模板支立时,顶板向上外放 3 cm,站厅层高度 5.58 m,采用 HG-300 立杆和 HG-180 立杆组合搭设,立杆组合搭设如图 3 所示。站台层高度 6.25 m,采用 HG-300 立杆和 HG-240 立杆组合搭设,立杆组合搭设如图 4 所示。


2. 3 支撑架受力检算
模板支撑架用于车站结构顶板、中板浇筑时的模板支撑。结构顶板厚 0.8 m,中板厚分 0.7 m 和 0.4 m 两种,受力检算以最大厚度 800 mm 板为例进行检算。 梁根据几何尺寸及布设方向的不同,分别取顶板宽×高=1 350 mm×1 900 mm 纵梁以及顶板换乘节点处宽×高=1 500 mm×3 000 mm 横梁为例进行检算。 通过对 800 mm厚顶板支撑架、梁底支撑架、18 mm 厚酚醛板强度及变形、梁模板底龙骨的验算,计算结果均能满足强度要求。 计算参数的选用和检算过程以及挠度变形计算略。
2. 4 施工工艺
2. 4. 1 施工工艺流程
拱部模板施工流程如图 5 所示。

2. 4. 2 模板支架施工
1)支架将直接搭设在已施工好的底板上,底板强度必须在 5 MPa 以上方可进行支架搭设,立杆下应设置底托,以增强立杆的稳定性及加强对底板的保护。
2)每排立杆搭设前必须放线,以保证每排支架在同一轴线上。
3)放线后,即可安放立杆垫座及立杆。 支架底层的立杆先选用 2.4、1.2 m 两种不同长度的立杆互相交错参差布置,使立杆的上端不在同一平面内,接头错开,剩余高度采用 2.4 m 长立杆接长至设计高度。
4)剪刀撑及加强撑必须按照方案要求搭设,以保证支架的整体稳定性。
5)第 1 层横杆搭设形成的框架直接影响以后模板支架成型,因此,第 1 层搭设完成后需及时进行验收。
6)立杆的接长是靠焊于立杆顶部的连接管承插而成。 立杆插入后,使上部立杆底端连接孔同下部立杆顶部连接孔对齐,插入连接销锁定,并且必须保证立杆在同一轴线上。
2. 4. 3 支架体系的检查与验收[1]
1)模板支架体系及其基础应在下列阶段进行检查与验收:
①基础完工后模板支架体系搭设前;
②作业层上施加荷载前;
③整体或分段达到设计高度后;
④遇大暴雨后;
⑤停用超过 1 个月。
2)模板支架体系使用中定期检查项目:
①承载杆件、加固杆件、连接件、斜撑、剪刀撑、孔洞通道的构造是否符合要求;
②场地地表是否积水,底座是否松动,立杆、立柱是否悬空,外侧立杆、立柱是否被冲撞过;
③立杆、立柱的沉降与垂直度的偏差是否符合要求;
④扣件、连接件是否松动;
⑤作业层上的施工荷载应符合设计要求,不得超载,不得在支架上集中堆放模板、钢筋等物料;
⑥混凝土输送管、布料杆不得固定在支架上;
⑦大模板不得直接堆放在支架上;
⑧使用后的支架构配件应清除表面粘接的灰渣,校正杆件变形,表面作防锈处理后待用。
2. 4. 4 支架体系的拆除
1)混凝土的强度要求
拆除模板时混凝土的强度,应符合设计要求;当设计无要求时,应符合下列规定:
①板混凝土强度达到 100 %后方可拆除。本条要求
通过结构同条件养护的试块强度的检测,以确定具体拆模时间。
②在拆模过程中,如发现实际结构混凝土强度并未达到要求,有影响结构安全的质量问题时,应暂停拆模,经妥善处理,实际强度达到要求后,方可继续拆除。
③已拆除模板及其支架的混凝土结构,应在混凝土强度达到设计的混凝土强度标准值后,才允许承受全部设计的使用荷载。 当承受施工荷载的效应比使用荷载更为不利时,必须经过核算,加设临时支撑。
④预留孔的内模应在混凝土强度能保证不发生塌陷和裂缝时,方可拆除。
2)支架拆除顺序
模板支架拆除的顺序和方法,要根据模板设计的规定进行。 模板设计无规定时按先支后拆,后支先拆,先拆除侧模板,后拆除底模板的原则进行拆除。
3)支架拆除的工艺要求
①支顶架经工程技术负责人检查验证并确认不再需要时,写拆模申请,提供混凝土强度报告,经审批同意后拆除。
②模板支架拆除必须严格按照方案要求进行拆除。
③由架子队技术主管进行拆除安全技术交底。
④拆除支顶架前,应清除支顶架上的材料、工具和杂物。
⑤拆除支顶架时,应设置警戒区和警戒标志,并由专职人员负责警戒。
⑥支顶架的拆除应在统一指挥下,按既定拆除顺序进行拆除:a.支架的拆除应从一端向另一端、自上而下逐层地进行,严禁上下同时作业;b.同一层的构配件和加固件按先上后下、先外后里的顺序进行;c.在拆除过程中,支架的自由悬臂高度不得超过两步,当必须超过两步时,应加设临时拉结;d.通长水平杆和剪刀撑等,必须在支架拆卸到相关的门架(立杆)时方可拆除;e.工人必须站在临时设置的脚手板上进行拆卸作业 ,并按规定使用安全防护用品;f.拆除工作中,严禁使用榔头等硬物击打、撬挖,各构配件严禁抛掷至地面;g.拆卸连接部件时 ,应先将锁座上的锁板与卡钩上的锁片旋转至开启位置,不得硬拉,严禁敲击。
2. 5 质量保证体系
1)建立工程检查制度。 加强施工过程质量控制,实行“三检制”。 项目部设专职质检工程师、工区设专职质检员,班组设兼职质检员,保证施工过程始终在质检人员的严格监督下进行,严格执行质量一票否决权。 作业班组自检,工区、项目部复检合格后及时通知监理工程师检查签认,隐蔽工程必须经监理工程师签认后方能隐蔽及进行下道工序的施工。
2)支架搭设前,技术人员应按专项方案的要求对操作人员进行技术交底并培训。
3)加强对进场构配件的质量检查验收工作,对经检验合格的构配件应按品种、规格分类放置在堆料区内或码放在专用架上,清点好数量备用;堆放场地排水应畅通,不得有积水。
4)支架搭设时,应有专人进行指挥、协同步调,要严格执行施工方案。
2. 6 安全保证措施[1]
1)支架安装前,工区技术主管必须进行书面的安全技术交底,确保交到每个作业人员手中,并签字备查。
2)搭设支架必须由专业架子工担任,并应按现行国家标准《特种作业人员安全技术考核管理规则》考核合格,持证上岗。 上岗人员应定期进行体检,凡不适合高处作业者不得上支架操作。
3)吊车吊运支架安装时,必须检查绳索、卡扣及吊环是否完好有效,吊装时必须由专职信号工统一指挥。吊运过程中,支架下方严禁站人,防止掉落或刮蹭。 吊装支架杆件时,必须采用吊斗吊装,严禁散吊,风力超过 5 级时不得进行吊装作业。
4)高处作业需采取可靠的安全措施,临边处搭设1.2 m 高防护栏杆,系好安全带,穿防滑鞋。
5)雨天施工时需及时清理工作面上的积水,采取可靠的防滑措施,避免发生滑倒而造成伤害。
6)搭拆架体时应划分、设置施工安全警戒区,设置明显标志,并有专人看护,严禁非施工人员进入 作业区。 拆除时必须得到技术部门书面同意。 拆卸时保证稳固支撑防止倾倒。
7)搭拆模板支架时,操作人员必须戴安全帽、系安全带、穿防滑鞋。 遇 6 级及以上大风、雨天、大雾天气时,应停止脚手架的搭设与拆除作业。
安全员、工班长等做好日常检查工作,及时发现问题消除事故隐患。
8)工地临时用电线路的架设及模板支架的接地、避雷措施,模板支架与架空输电线路的安全距离等应按《施工现场临时用电安全技术规范》的有关规定执行。 模板支架工作面必须使用安全电压,线路必须与模板支架等导电体绝缘。 钢管模板支架上安装照明灯时,电线不得接触模板支架,并要做绝缘处理。在模板支架上进行电、气焊作业时,必须有防火措施和设专人看守。使用手持式电动工具时,负荷线采用不带接头的耐气候型的橡皮护套铜芯软电缆,操作工人必须按规定穿戴绝缘防护用品。
9)模板支架搭设完后,由施工技术负责人及技术、安全等有关人员共同验收合格后方可使用。
10)作业层上的施工荷载不应超过模板工程设计各项荷载,不得超载。 不得在模板支架上集中堆放模板、钢筋等物件,严禁在模板支架上拉缆风绳,固定、架设模板支架及混凝土泵送管等,严禁悬挂起重设备。
11)脚手架使用期间 ,严禁擅自拆除架体结构杆件,如需拆除必须修改施工方案并报请原方案审批人批准,确定补救措施后方可实施。
12)严禁在脚手架基础及邻近处进行挖掘作业。
3 结论
某地铁明挖车站结构相对复杂,车站跨度偏大,变化断面多,通过制定周密的技术方案,严格的安全、质量措施,确保了满堂支架的安全应用,从理论和实践上证明了满堂支架体系的灵活性、安全可靠性,对于类似工程具有很好的参考作用。
参考文献:
[1] 中国建筑科学研究院. JGJ 130-2001 建筑施工扣件式钢管脚手架安全技术规范[S]. 北京:中国建筑工业出版社,2001.